[maison_domino+]
der schwerpunkt dieses entwurfs lag in der fassade. das ganze sollte ich in der modulbauweise (3,5m x 3,5m x7m) als sudentenhäuschen, villa oder einfaches wohnhaus konstruieren. entschieden habe ich mich für ein studentenhäuschen.
als hülle habe ich eine glasfassade (structal glasing, sg-verglasung) ausgewählt. die einzelnen glasscheiben habe ich in verschiedenen blautönen ausgewählt.
dabei habe ich nur vier module in anspruch genommen, von denen drei liegend (küche, wohnraum und schlafraum) und eins stehend (treppenhaus) sind.

entwurfsidee

lageplan

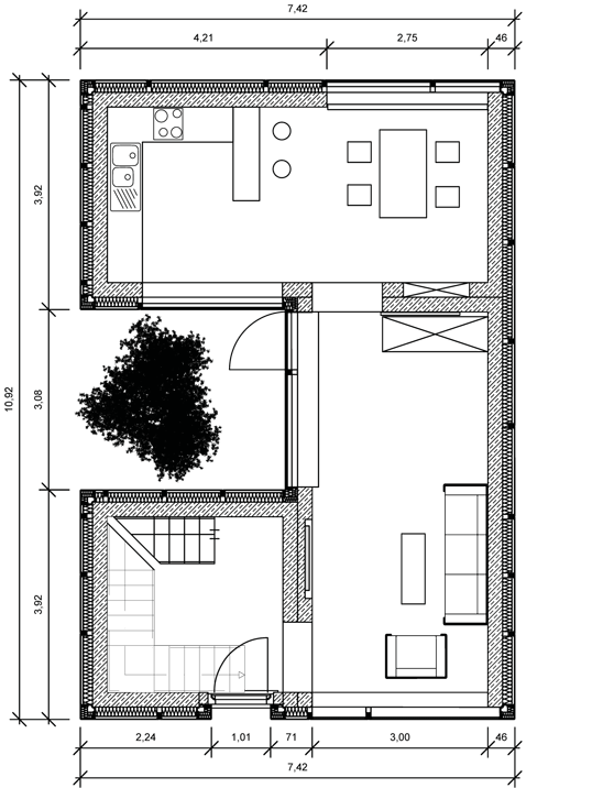
erdgeschoss

terassengeschoss

obergeschoss

schnitt a-a

schnitt b-b

ansicht nord

ansicht ost

ansicht süd

ansicht west


