raum|programmierung [zero-base-form]
städtebauliche herangehensweise:
mein entwurf sieht eine einfache kubenhafte strukturierung des grundstücks am stadtgraben in münster vor. die enge zusammenstellung einzelner quadratförmiger wohneinheiten erzeugt engere und weitere platzartige zwischenräume. sie dienen als aufenthalts- und kommunikationsmöglichkeiten zwischen den bewohnern, aber auch als abgrenzung zu den unterschiedlichen privatzonen der wohngemeinschaften. die umliegende grünzone setzt sich in der wohnstruktur fort.
nutzung und erschließung:
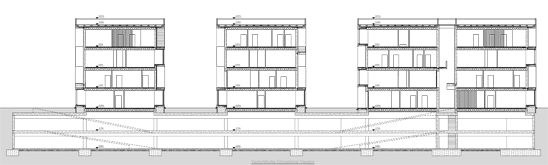
das wohnquartier soll den steigenden studentischen wohnbedarf in zentrumsnähe entlasten. die grundrisse sind für das wohnen in gemeinschaften von 3 bzw. 4 parteien ausgelegt. die viergeschossigen kuben werden spiralförmig über außentreppen erschlossen. für die unterbringung von fahrzeugen befindet sich eine tiefgarage auf erdbodenniveau .
hülle:
die kuben werden mit einem unorthogonalen stahlgeflecht umschlossen. sich öffnende wohnräume durchstoßen die struktur, introvertiertere räume bleiben versteckt.















