erweiterung des museums "heimathaus münsterland" in telgte
die aufgabenstellung war einen erweiterungsbau für das heimathaus in telgte zu entwerfen. als bestandsgebäude wahren eine pfarrscheune aus dem jahre 1607, die im jahre 1934 zum wallfahrts‐ und heimatmuseum ausgebaut wurde, ein dreigiebeliger anbau von 1937 von dominikus böhm, ein 1983 gebauter drei‐giebel‐anbau für wechselausstellungen mit eingang, kassenbereich und aufzug. auf der anderen straßenseite steht das krippenmuseum, das im jahre 1994 von j.p. kleihues erbaut wurde.
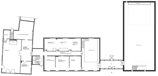
mein entwurf konzentriert sich auf den durch den abriss des dreigiebeligen anbaus freigewordenen bauplatz und sieht einen schlichten und monolithischen körper vor. dieser verbindet sich mit einen glasgang zum böhm-bau und beherbergt einen aufzug. die fassade besteht aus quadratischen schieferplatten, die sich auf wand- und dachflächen ausbreiten. um natürliches licht einzulassen habe ich streifenfenster in den monolithischen körper eingesetzt. der grundriss konzentriert sich auf das berühmter telgter hungertuch (7.40x 4.40m), das im jahre 1623 entstand. das hungertuch habe ich an der hinteren giebelwand positioniert, um die strengen ausstellungvorschriften einzuhalten. im keller befinden sich die notwendigen nebenräume.









